Россия, Владикавказ, Кырджалийская улица
Площадь
Жилая
Кухня
Отделка
Класс жилья
Комнат
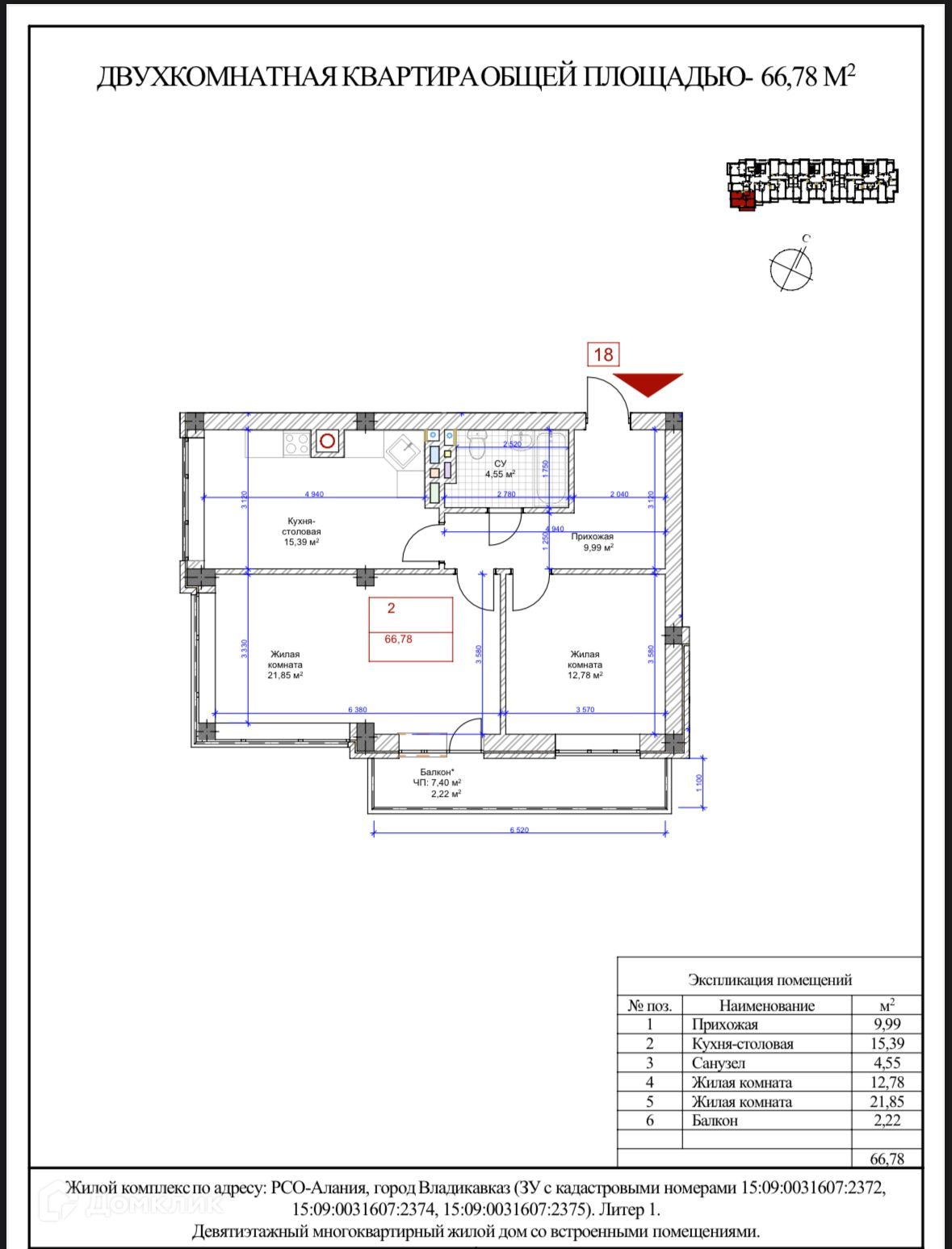
Номер кв.
Этаж
Доступна к покупке 2-комнатная квартира в современном жилом комплексе "Первомайский" 🏢. Квартира расположена на 4-м этаже 10-этажного дома. Прекрасный выбор для инвестиций.
Чтобы забронировать эту квартиру бесплатно и зафиксировать цену — позвоните нам прямо сейчас! 📞
✅ЖК Первомайский Многоквартирный жилой дом по ул. Кырджалийская. Характеристика дома: ✅монолитно - кирпичный дом ✅класс дома «КОМФОРТ+» ✅ 9-ти этажный; трех подъездный ✅108 квартир- площадью от 49.15 кв.м до 99.14 кв.м ✅ доступная среда для людей с ограниченными возможностями; ✅ высота потолков 2.90 м ✅ закрытый двор ✅ лифт повышенной комфортности ✅ сдача дома- конец 2027 г.‼️ ✅ принимаются разные виды оплат: • наличный расчет • ипотека • рассрочка до конца строительства
Срок сдачи: 1 кв. 2028 г.
Срок сдачи: 1 кв. 2028 г.
Площади квартир
Тип жилья
Этажность
Класс жилья
Корпусов
Стены